The Indio

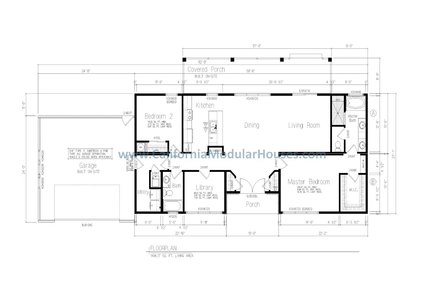
Explore The Sunland, a 1,496 sq ft single story prefab modular home floor plan for California, 3 bedrooms, 2 bathrooms with expansive primary suite & bathroom, open concept galley kitchen, French door foyer, & skylight dormer.

SQUARE FEET: 1496

BEDROOMS: 3

BATHROOMS: 2

WIDTH: 27’-1”

LENGTH: 58’

Customization options available through our Drafting & Design process, such as altering square footage, modules, etc.. Learn about the modular home building process in California and how to get started, along with the benefits of prefab modular homes.


How much does a prefab modular home cost in California? How long does it take to build? What is a modular home? Read answers for the common questions about building prefab modular homes in California on our FAQ page.


Contact us here to request pricing of a modular home, discuss customization options, or schedule a consultation.


Previous
Previous

The Davis

Next
Next

The Lemon Grove