The Ione

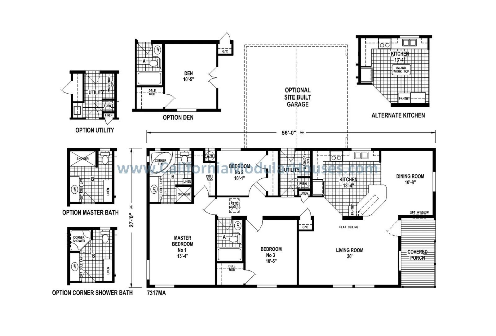
Explore The Ione, a 1,422 sq ft single story prefab modular home floor plan for California, 2 bedrooms, 2 bathrooms with expansive primary suite & bathroom, island in kitchen with a bar stool area, kitchen island, & optional layout designs.

SQUARE FEET: 1422

BEDROOMS: 3

BATHROOMS: 2

WIDTH: 27’

LENGTH: 56’

Customization options available through our Drafting & Design process, such as altering square footage, modules, etc.. Learn about the modular home building process in California and how to get started, along with the benefits of prefab modular homes.


How much does a prefab modular home cost in California? How long does it take to build? What is a modular home? Read answers for the common questions about building prefab modular homes in California on our FAQ page.


Contact us here to request pricing of a modular home, discuss customization options, or schedule a consultation.


Previous
Previous

The Newark

Next
Next

The Huron