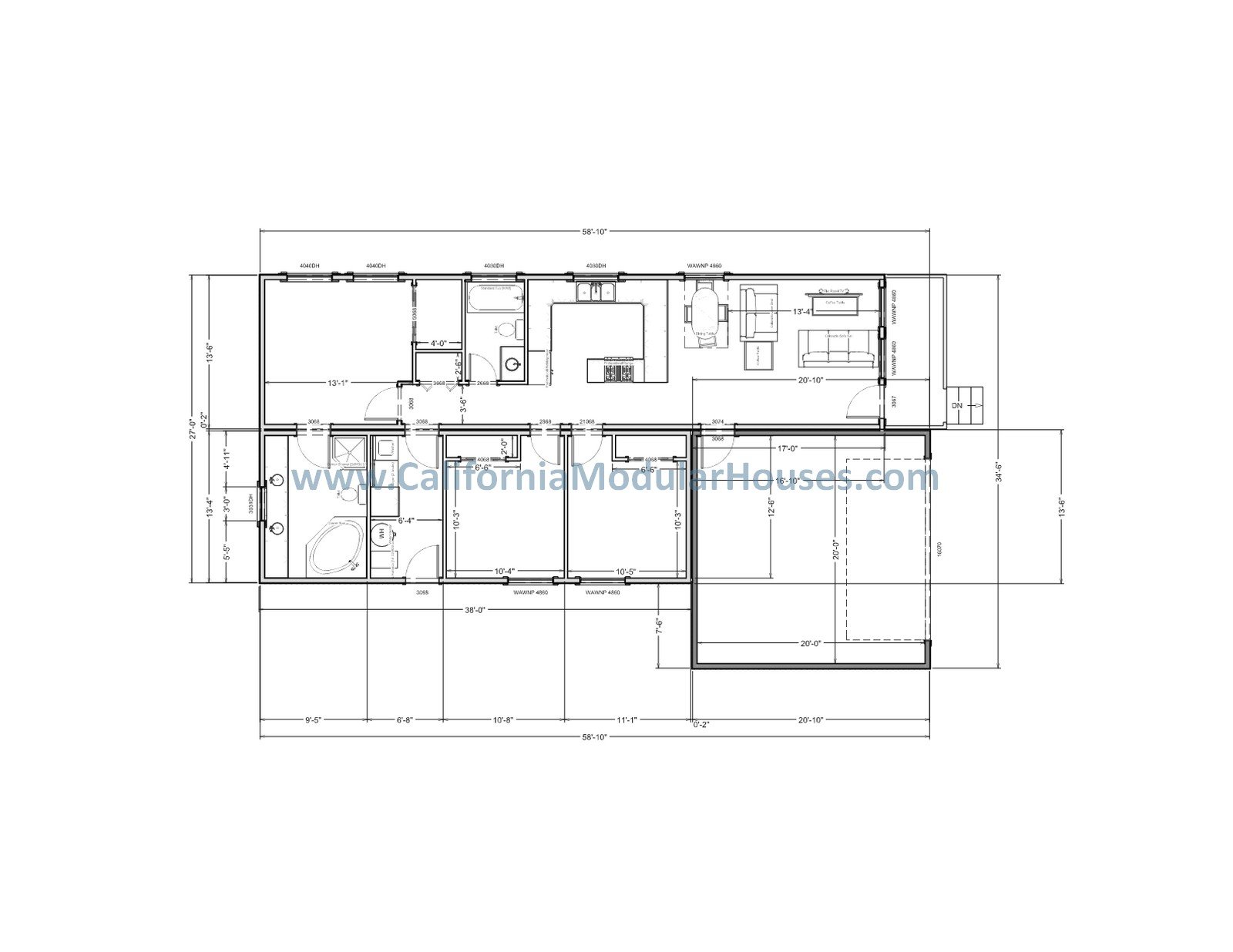
The Lodi

SQUARE FEET: 1251

BEDROOMS: 3

BATHROOMS: 2

WIDTH: 34'-6”

LENGTH: 58'-10”

Key Features of The Lodi

1251 square feet of efficiently planned living space

2 sections prefab modular home

3 bedrooms, 2 full bathrooms

Open-concept living, dining, & peninsula kitchen layout

Private primary suite bathroom featuring expansive counter space

Energy-efficient prefab modular construction

Utility/laundry room with countertop and lower cabinet

Designed for California codes and lifestyles


California Modular Single Family Residence Common Factory Upgrades

Upgraded Front & Rear Doors with Glass

Front Door Sidelights

French Doors

Kitchen Island or Barstool Eating Area

Additional Exterior Plugs

Pendant Lighting

Additional Exterior Hose Bibs

Taller Windows

Additional Windows

Clerestory Windows

Soffits Above Kitchen Cabinets

Exterior Accent Siding

Wildland Urban Interface High Fire Specifications (Chapter 7A)

Additional Interior Recessed Lighting

Double Sinks in Larger Bathroom

Bank of Drawers in Bathroom

Cabinets over Washer/Dryer

Pantry or Linen Cabinets

Walk-In Pantry

Farmhouse Sink


Customization options available through our Drafting & Design process, such as altering square footage, modules, etc.. Learn more about the prefab modular home process here and how to get started, along with how a modular home can benefit you.


How much does a prefab modular home cost in California? How long does it take to build? What is a modular home? Read answers for the common questions about building prefab modular homes in California on our FAQ page.


Contact us here to request pricing of a modular home, discuss customization options, or schedule a consultation.


Previous
Previous

The Ripon

Next
Next

The Josey