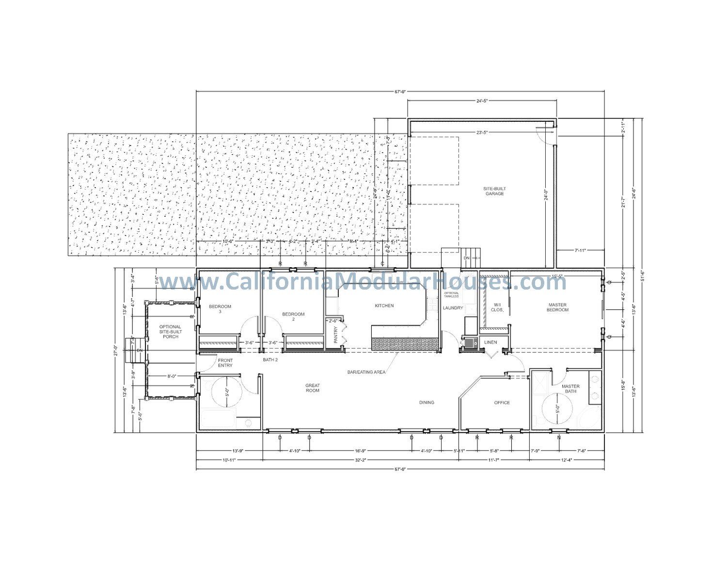
The Port Hueneme

Explore The Port Hueneme, a 1,794 sq ft prefab modular home floor plan accessibly designed for California. 3 bedrooms & 2 bathrooms. Expansive primary suite & bathroom, open concept G-shaped kitchen with bar/seating area, & large laundry room.

SQUARE FEET: 1794

BEDROOMS: 3

BATHROOMS: 2

WIDTH: 27'

LENGTH: 67'

Customization options available through our Drafting & Design process, such as altering square footage, modules, etc.. Learn about the modular home building process in California and how to get started, along with the benefits of prefab modular homes.


How much does a prefab modular home cost in California? How long does it take to build? What is a modular home? Read answers for the common questions about building prefab modular homes in California on our FAQ page.


Contact us here to request pricing of a modular home, discuss customization options, or schedule a consultation.


Previous
Previous

The Ventura

Next
Next

The Santa Rosa