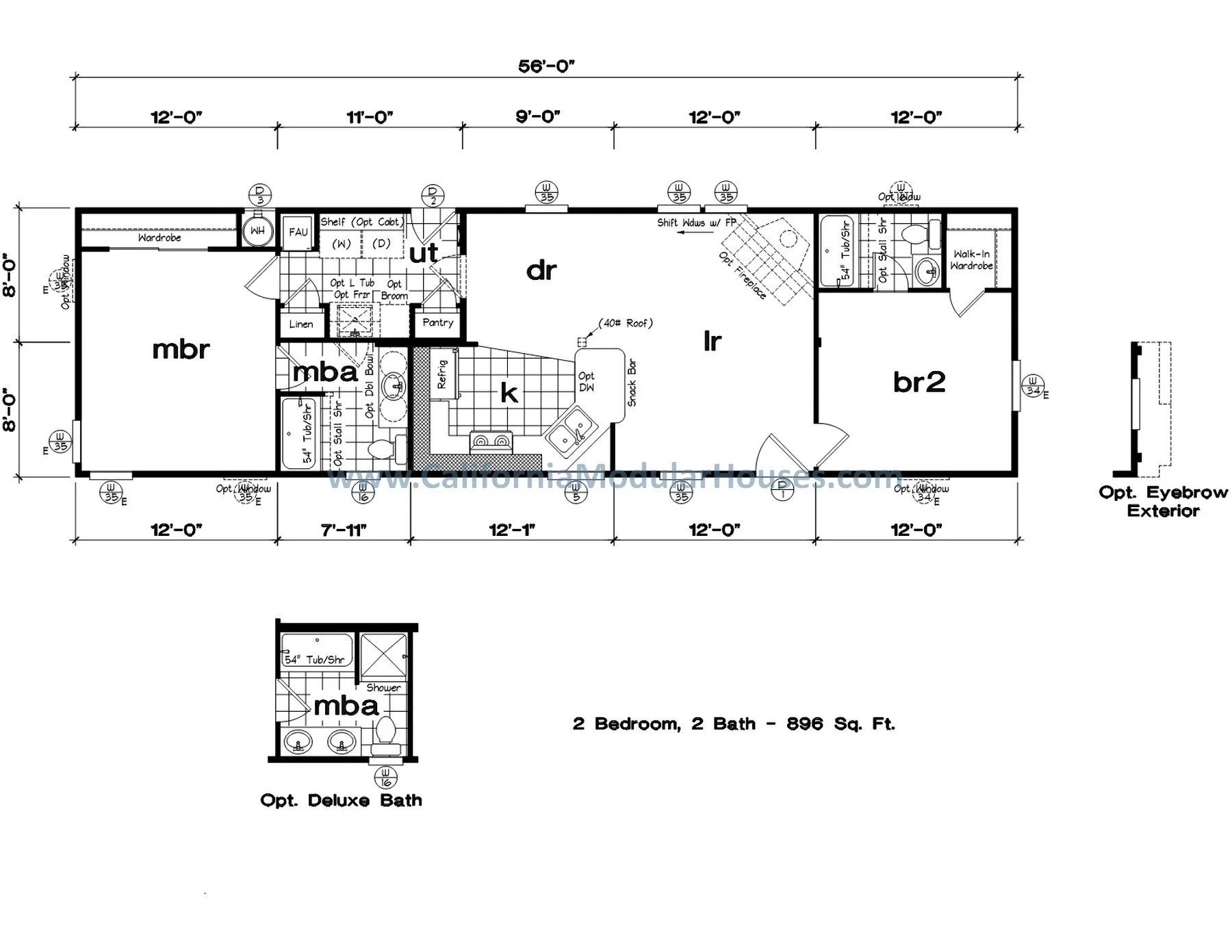
The Dove ADU Sep 27 Written By California Modular Houses, Inc. SQUARE FEET: 896 BEDROOMS: 2 BATHROOMS: 2 WIDTH: 16’ LENGTH: 56’ The Dove - PreFab Modular ADU Buildable Anywhere in California California Modular Houses, Inc.
The Dove ADU Sep 27 Written By California Modular Houses, Inc. SQUARE FEET: 896 BEDROOMS: 2 BATHROOMS: 2 WIDTH: 16’ LENGTH: 56’ The Dove - PreFab Modular ADU Buildable Anywhere in California California Modular Houses, Inc.