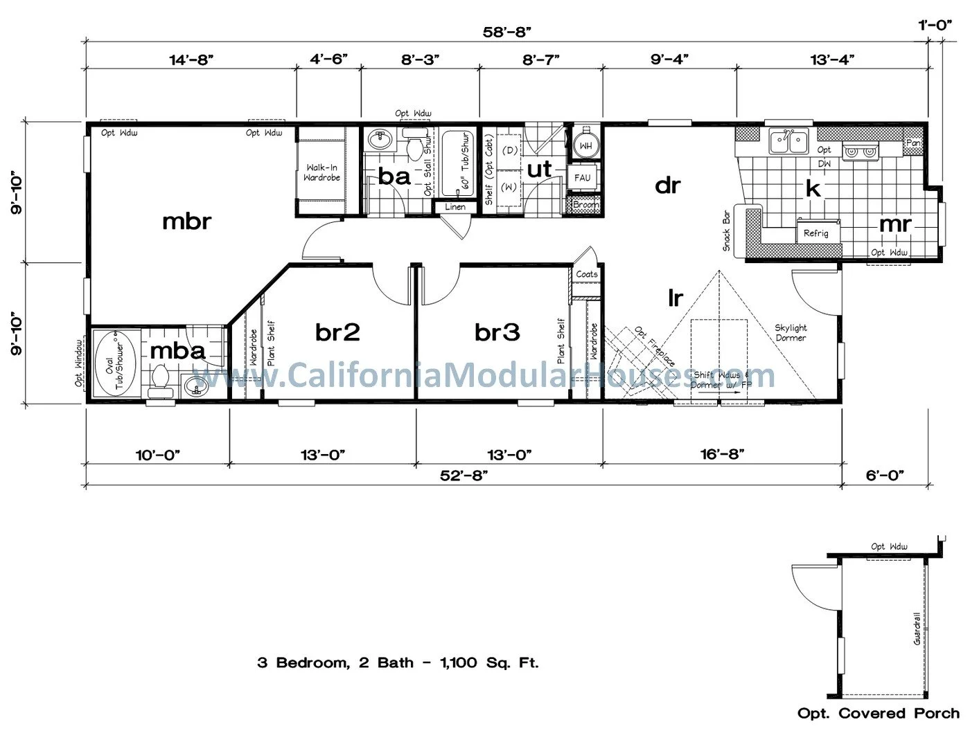
The Ibis ADU Jun 1 Written By California Modular Houses, Inc. SQUARE FEET: 1100 BEDROOMS: 3 BATHROOMS: 2 WIDTH: 19.67’ LENGTH: 58.67’ The Ibis - Modular ADU for Anywhere in California California Modular Houses, Inc.
The Ibis ADU Jun 1 Written By California Modular Houses, Inc. SQUARE FEET: 1100 BEDROOMS: 3 BATHROOMS: 2 WIDTH: 19.67’ LENGTH: 58.67’ The Ibis - Modular ADU for Anywhere in California California Modular Houses, Inc.