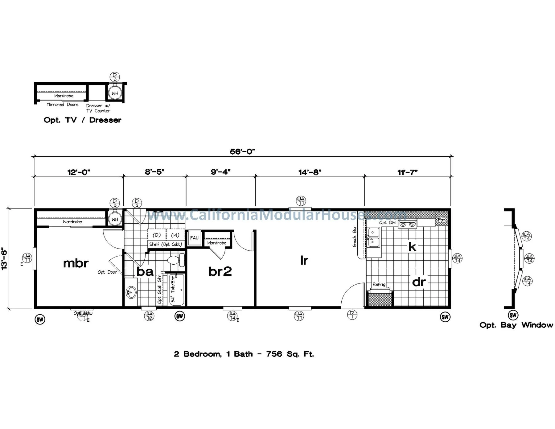
The Roadrunner
SQUARE FEET: 756
BEDROOMS: 2
BATHROOMS: 1
WIDTH: 13’-6”
LENGTH: 56’
This prefab modular ADU can be delivered throughout California where adequate access to the property exists. It’s a single section which helps keep costs down as less work is required on-site. The front porch is built on-site by the General Contractor so it can be larger or smaller, your preference.

