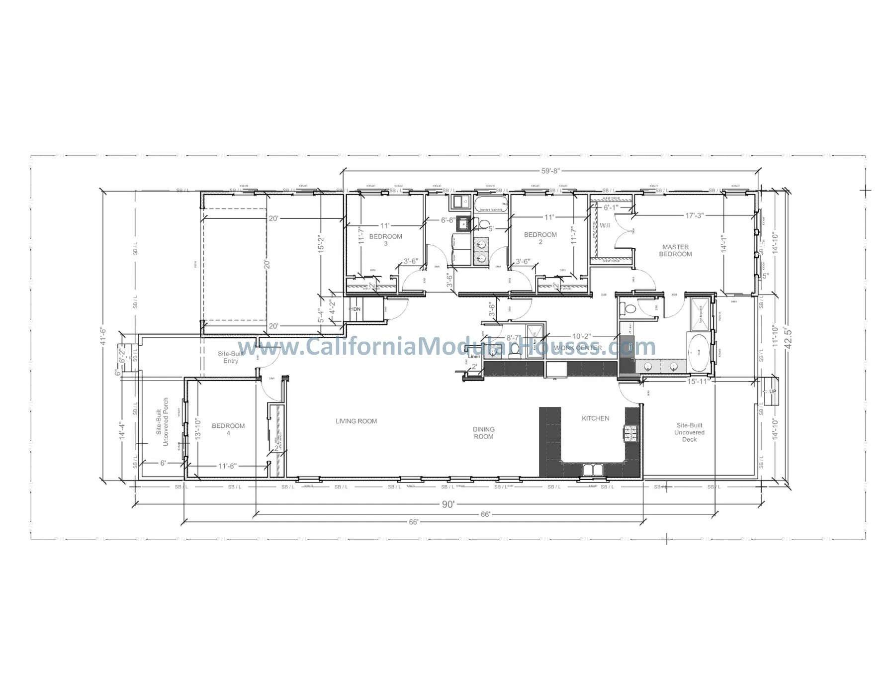
The San Mateo Oct 6 Written By California Modular Houses, Inc. SQUARE FEET: 2547 BEDROOMS: 4 BATHROOMS: 2.5 WIDTH: 41’-6” LENGTH: 90’ California Modular Houses, Inc.
The San Mateo Oct 6 Written By California Modular Houses, Inc. SQUARE FEET: 2547 BEDROOMS: 4 BATHROOMS: 2.5 WIDTH: 41’-6” LENGTH: 90’ California Modular Houses, Inc.