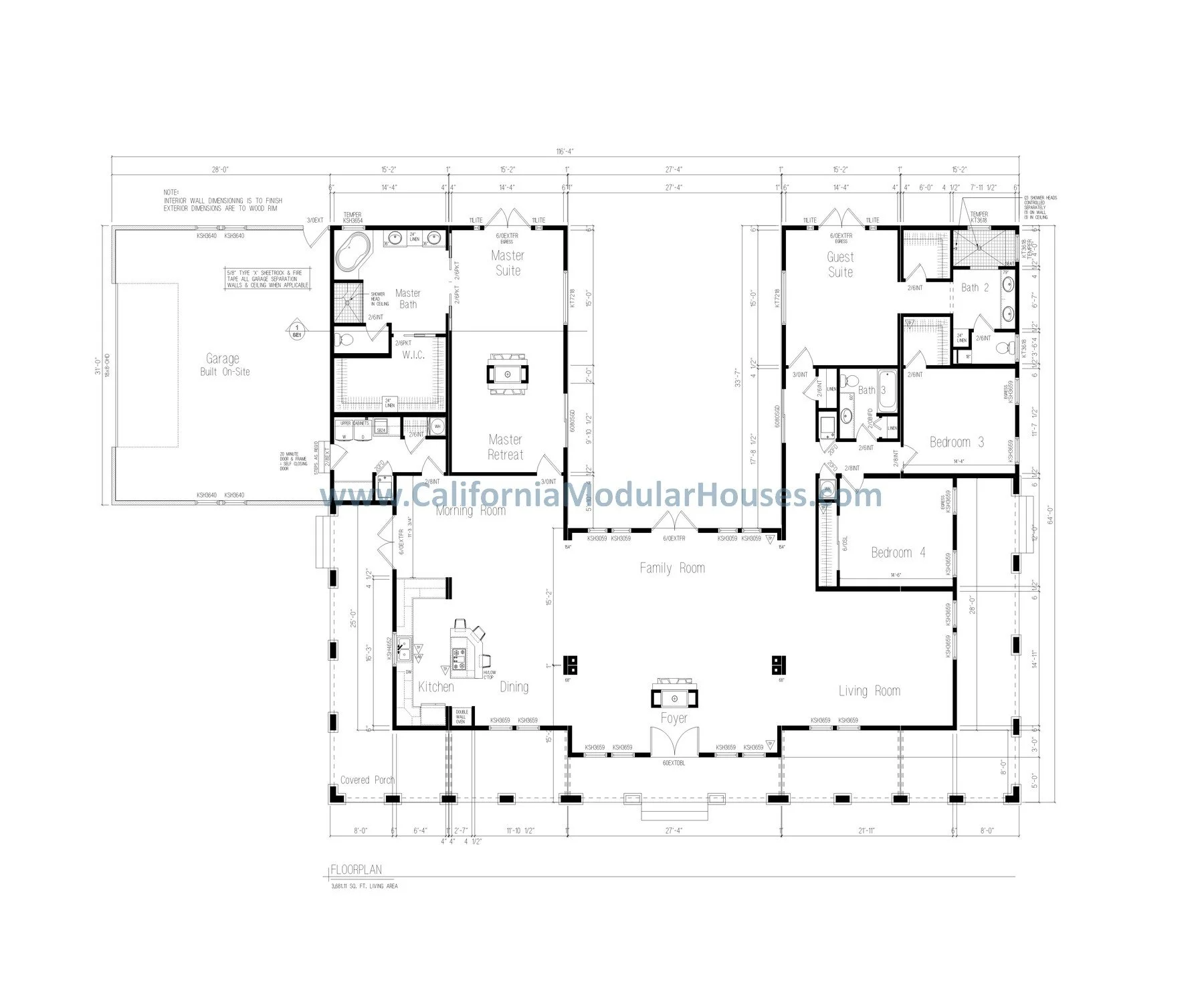
The Woodlake

Pueblo style prefab modular home, 3681 sf, 4 bedrooms, 3 bathrooms. French doors foyer, L-shaped kitchen with peninsula featuring a barstool area. Center of home family area with French Doors leading to the expansive courtyard.

SQUARE FEET: 3681

BEDROOMS: 4

BATHROOMS: 3

WIDTH: 64’

LENGTH: 88’-4”


Key Features of The Woodlake

3681 square feet of ranch-style space

6 sections prefab modular home design

4 bedrooms, 3 bathrooms

Open-concept living & dining room

L-shaped kitchen with island

Private primary suite with ensuite bathroom & large walk-in closet

Energy-efficient prefab modular construction

Utility/laundry room

Cozy morning room

Sliding glass doors entry

Two sliding glass doors along the rear facing wall

Designed for California codes and lifestyles


Customization options available through our Drafting & Design process, such as altering square footage, modules, etc.. Learn about the modular home building process in California and how to get started, along with the benefits of prefab modular homes.


How much does a prefab modular home cost in California? How long does it take to build? What is a modular home? Read answers for the common questions about building prefab modular homes in California on our FAQ page.


Contact us below to request pricing, discuss customization options, or schedule a consultation.






Previous
Previous

The Humboldt