The Sapphire Falls

Explore The Sapphire Falls, a 2,059 sq ft two-story prefab modular home floor plan designed with a first level primary bedroom, galley kitchen, & more.

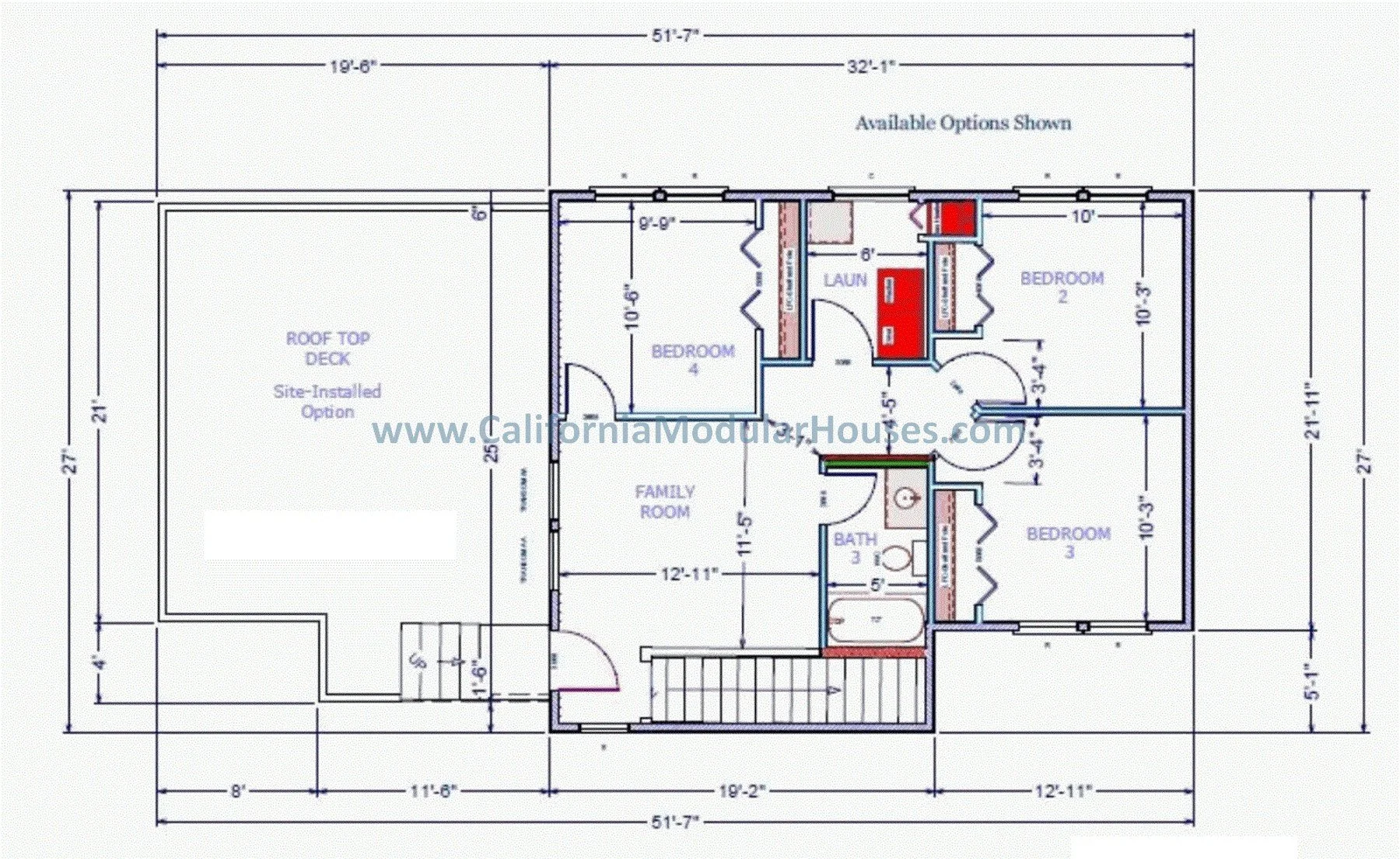
SQUARE FEET: 2059

BEDROOMS: 4

BATHROOMS: 2.5

WIDTH: 53'-7"

LENGTH: 30’-4”

Key Features of The

Sapphire Falls

2059 square feet

4 sections two-story prefab modular home design

4 bedrooms, 3 full bathrooms

Open concept galley kitchen design

Upstairs family room

Primary suite with ensuite bathroom & walk-in closet on first level

Laundry/utility room featuring a standalone sink

Energy-efficient prefab modular construction


California Modular Single Family Residence Common Factory Upgrades

Upgraded Front & Rear Doors with Glass

Front Door Sidelights

French Doors

Kitchen Island or Barstool Eating Area

Additional Exterior Plugs

Pendant Lighting

Additional Exterior Hose Bibs

Taller Windows

Additional Windows

Clerestory Windows

Soffits Above Kitchen Cabinets

Exterior Accent Siding

Wildland Urban Interface High Fire Specifications (Chapter 7A)

Additional Interior Recessed Lighting

Double Sinks in Larger Bathroom

Bank of Drawers in Bathroom

Cabinets over Washer/Dryer

Pantry or Linen Cabinets

Walk-In Pantry

Farmhouse Sink


CA Prefab SFR Occasional Factory Upgrades

Solid-Core Doors

Taller Ceilings

Window Grids

Longer Eaves

Steeper Roof Pitch

Larger Water Heater


Customization options available through our Drafting & Design process, such as altering square footage, modules, etc.. Learn about the modular home building process in California and how to get started, along with the benefits of prefab modular homes.


How much does a prefab modular home cost in California? How long does it take to build? What is a modular home? Read answers for the common questions about building prefab modular homes in California on our FAQ page.


Contact us here to request pricing of a modular home, discuss customization options, or schedule a consultation.


Previous
Previous

The Bonita Falls

Next
Next

The Royal Arch Falls