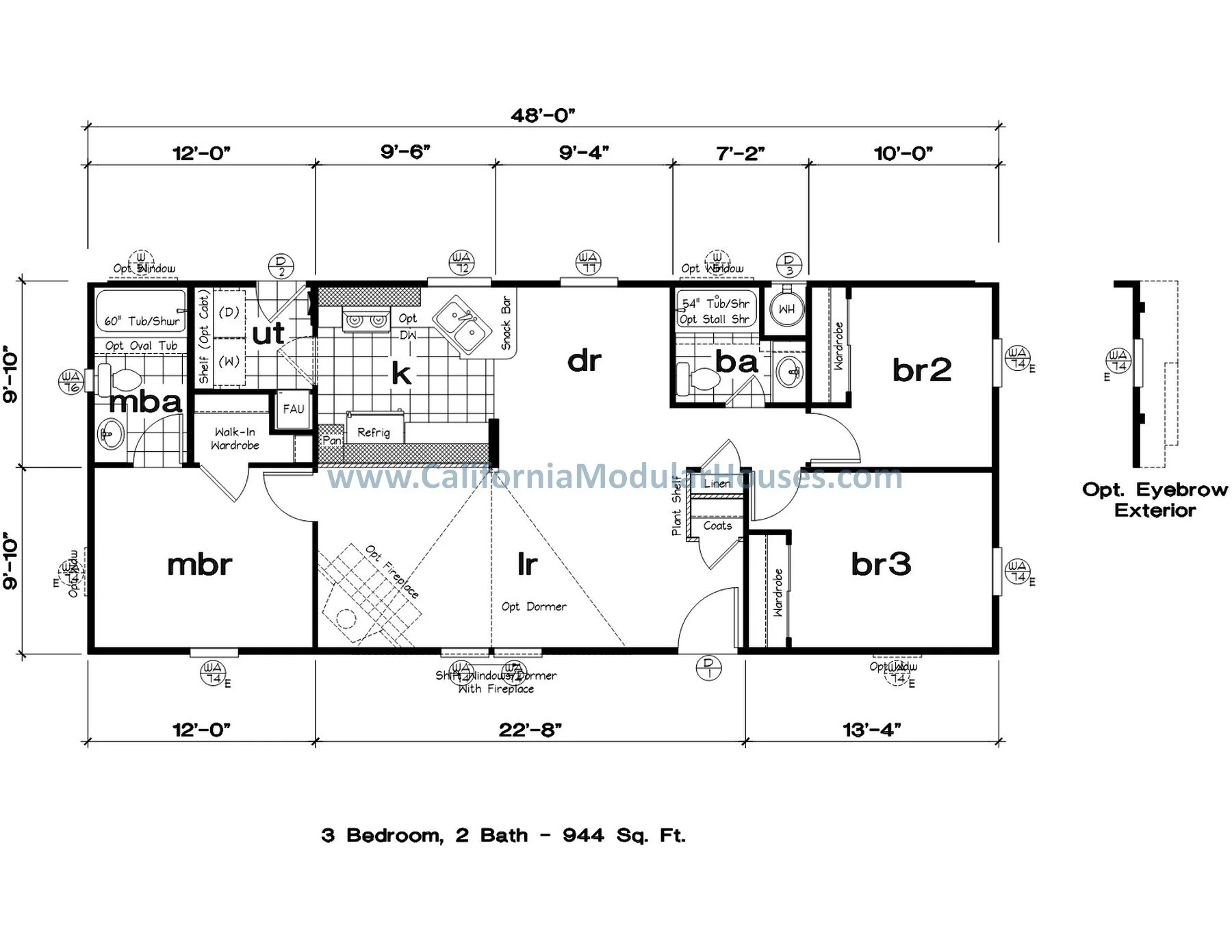
The Jaeger ADU Sep 25 Written By California Modular Houses, Inc. SQUARE FEET: 944 BEDROOMS: 3 BATHROOMS: 2 WIDTH: 19’-8” LENGTH: 48’ The Jaeger PreFab ADU for Watsonville, Monterey County, California. California Modular Houses, Inc.
The Jaeger ADU Sep 25 Written By California Modular Houses, Inc. SQUARE FEET: 944 BEDROOMS: 3 BATHROOMS: 2 WIDTH: 19’-8” LENGTH: 48’ The Jaeger PreFab ADU for Watsonville, Monterey County, California. California Modular Houses, Inc.