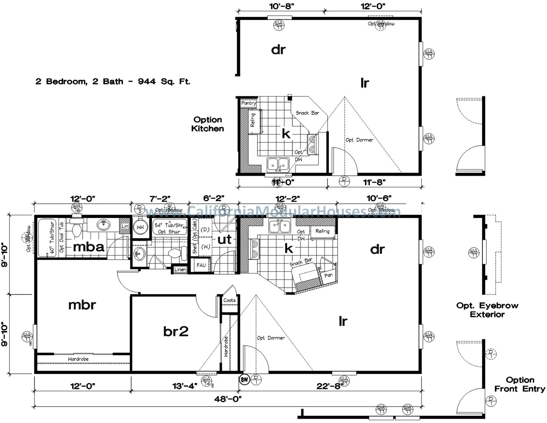
The Verdin ADU Sep 24 Written By California Modular Houses, Inc. SQUARE FEET: 944 BEDROOMS: 2 BATHROOMS: 2 WIDTH: 19’-8” LENGTH: 48’ The Verdin - Modular Accessory Dwelling Unit for California California Modular Houses, Inc.
The Verdin ADU Sep 24 Written By California Modular Houses, Inc. SQUARE FEET: 944 BEDROOMS: 2 BATHROOMS: 2 WIDTH: 19’-8” LENGTH: 48’ The Verdin - Modular Accessory Dwelling Unit for California California Modular Houses, Inc.